网站首页
关于半岛(中国)bandao·官方网页版
产品世界
新闻资讯
工程案例
售后服务
全国网点
半岛(中国)bandao·官方网页版
合格证真伪查询
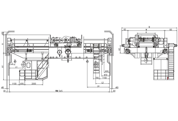
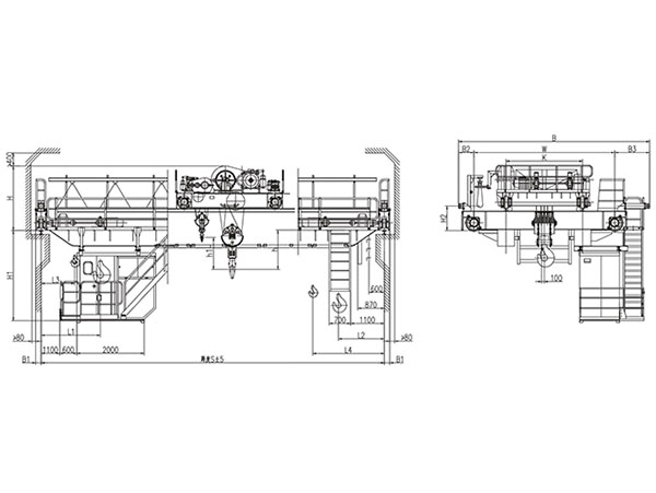
双梁起重机
QDY型16、3.2~20、5t冶…
QDY型32、5~50、10t冶金…
QDY型74、20t冶金起重机…
YZ型100、32~125…
YZ型125、32~140、40t铸…
YZ型140、40t铸造起重机…
YZ型160、40t铸造起重机…
YZ型180、50~240、75t铸…
YZ型280、75~320、80t铸…
5~10t欧式吊钩桥式起重…
16~20t欧式吊钩桥式起重…
32~50t欧式吊钩桥式起重…
总共 63 条记录 每页 12 条 共 6 页 当前第 3 页
首页
上一页
1
2
3
4
5
6
下一页
尾页
爱体育在线官网(中国)
|
半岛线上官网(中国)官方网站
|
半岛集团公司
|
爱体育爱体育首页
|
完美平台
|
新利网页版_新利(中国)
|
星空在线注册
|
半岛官网平台
|
爱体育在线官网(中国)
|