网站首页
关于半岛(中国)bandao·官方网页版
产品世界
新闻资讯
工程案例
售后服务
全国网点
半岛(中国)bandao·官方网页版
合格证真伪查询
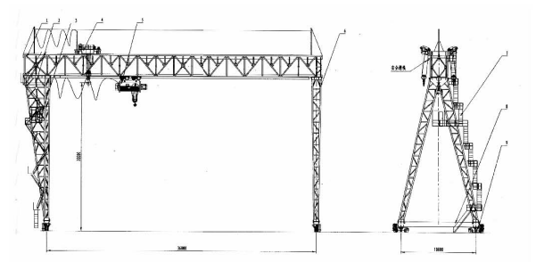
门式起重机
MG型双主梁吊钩门…
MGD型5-32、5吨单…
MDE型25×2+25T单…
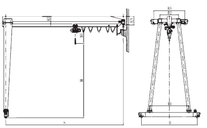
2-20吨MHB型电动葫芦半…
MHL型5-32吨电动葫芦门…
MHb型3-32吨电动葫芦门…
MHb型3-32吨电动…
门式起重机
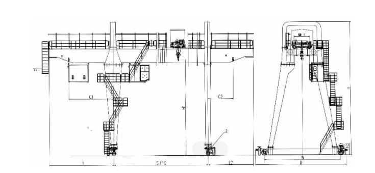
吊钩双主梁工程门式起重…
MH型电动葫芦门式起重机…
MHL型电动葫芦门式起重…
MHb型电动葫芦门式起重…
总共 17 条记录 每页 12 条 共 2 页 当前第 1 页
首页
上一页
1
2
下一页
尾页
爱体育在线官网(中国)
|
半岛线上官网(中国)官方网站
|
半岛集团公司
|
爱体育爱体育首页
|
完美平台
|
新利网页版_新利(中国)
|
星空在线注册
|
半岛官网平台
|
爱体育在线官网(中国)
|